Vergiate – casa indipendente con ampio giardino
Cosa aspetti? Le nostre case sono tutte in esclusiva, le…
€248.000,00
Comerio, Varese, Lombardia, 21025, Italia
Vendita
€265.000,00





























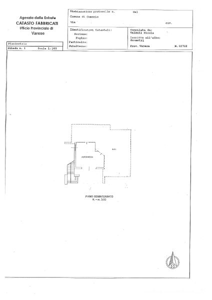
Casa indipendente VISTA LAGO con giardino, composta da ingresso, soggiorno, cucina, sala pranzo, salone, disimpegno, 2 ampie camere, bagno, 3 balconi al Piano Primo; locale lavanderia, locale caldaia, cantina, ampia taverna, bagno e doppio box al Piano Terra. La posizione è semicentrale, il riscaldamento autonomo a metano con caldaia nuova, le condizioni sono abitabili.
Viale Ticino, 8 - 21026 Gavirate (VA)
Guarda la mia listaUfficio: +39 0332 742477
Cellulare: +39 0332 731389
Fax: +39 0332 735406
Email: info@unideaimmobiliare.it
Cosa aspetti? Le nostre case sono tutte in esclusiva, le…
€248.000,00
Cosa aspetti? Le nostre case sono tutte in esclusiva, le…
€173.000,00
Mornago – grazioso bilocale