Cocquio – Ampia casa semindipendente con giardino
Casa libera su 3 lati con ingresso indipendente di 300…
€90.000,00
Sesto Calende, Varese, Lombardia, 21018, Italia
Vendita
€349.000,00














































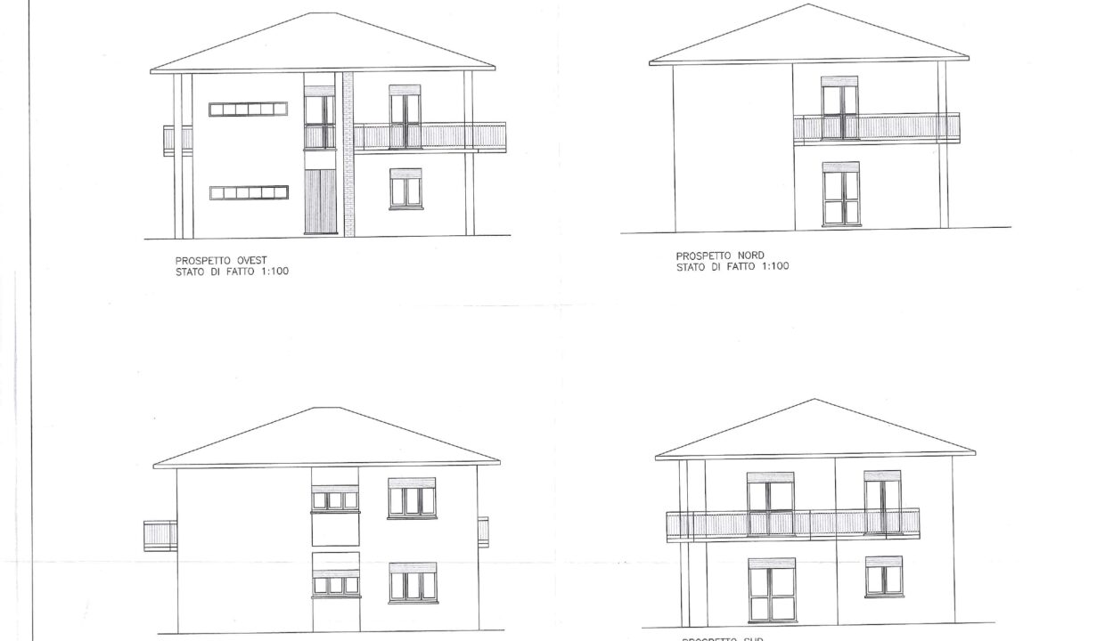
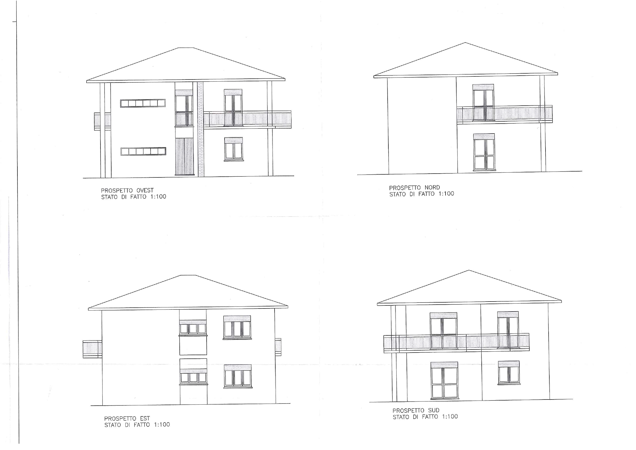
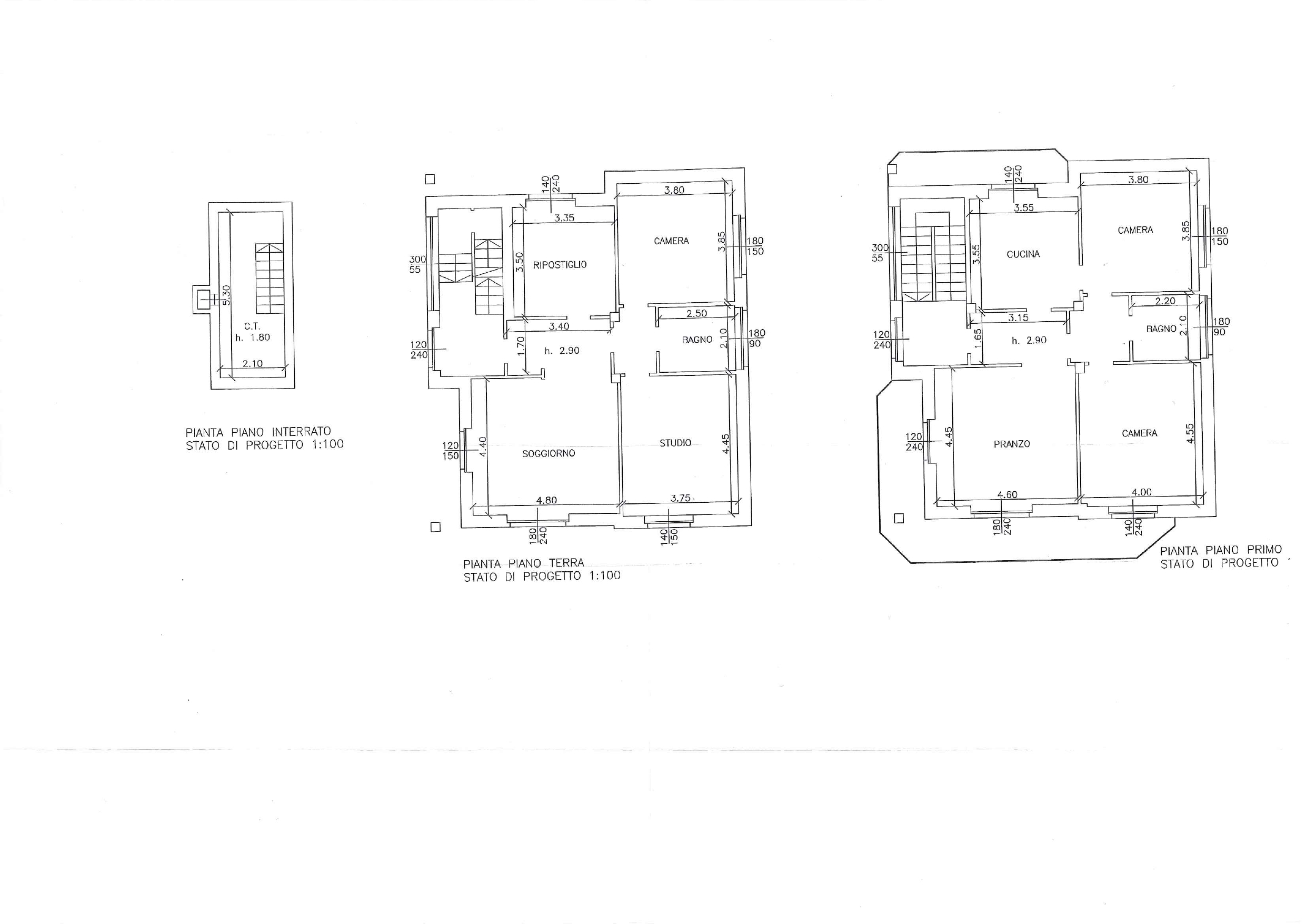
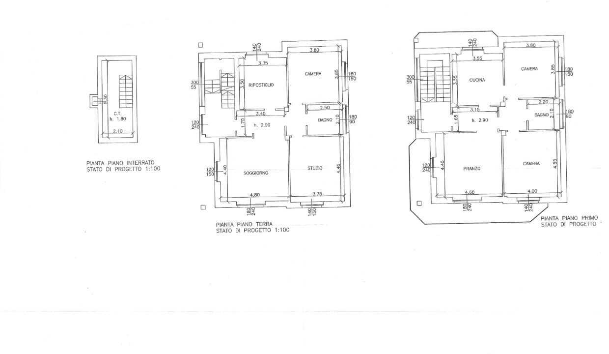
Casa singola con giardino composta da cucina, soggiorno, studio, camera matrimoniale, bagno, cantina e ripostiglio al piano terra; salone con terrazzo, cucina abitabile, due camere matrimoniali e bagno al Piano Primo, collegati internamente ma con la possibilità di realizzare 2 unità abitative con la propria indipendenza. Compete inoltre fabbricato all’interno della proprietà con doppio posto auto e locale studio/tavernetta. Il riscaldamento è autonomo a metano con caldaia nuova. TELEFONARE 0331/964.475
Via Felice Cavallotti, 9 - 21029 Vergiate (VA)
Guarda la mia listaCasa libera su 3 lati con ingresso indipendente di 300…
€90.000,00
VENDUTA!!!!! Devi vendere la tua casa?? Altri clienti cercano casa…
€46.000,00
Sumirago – Appartamento come indipendente